Type(s) of property(ies)
Apartment Duplex Office space House Villa Box Right to lease Sale of business assetLocalisation
Price
Living area
Selling price2 600 000 €
Nb of rooms2
Type of propertyOffice space
Total area85 Sqm
FloorGround floor
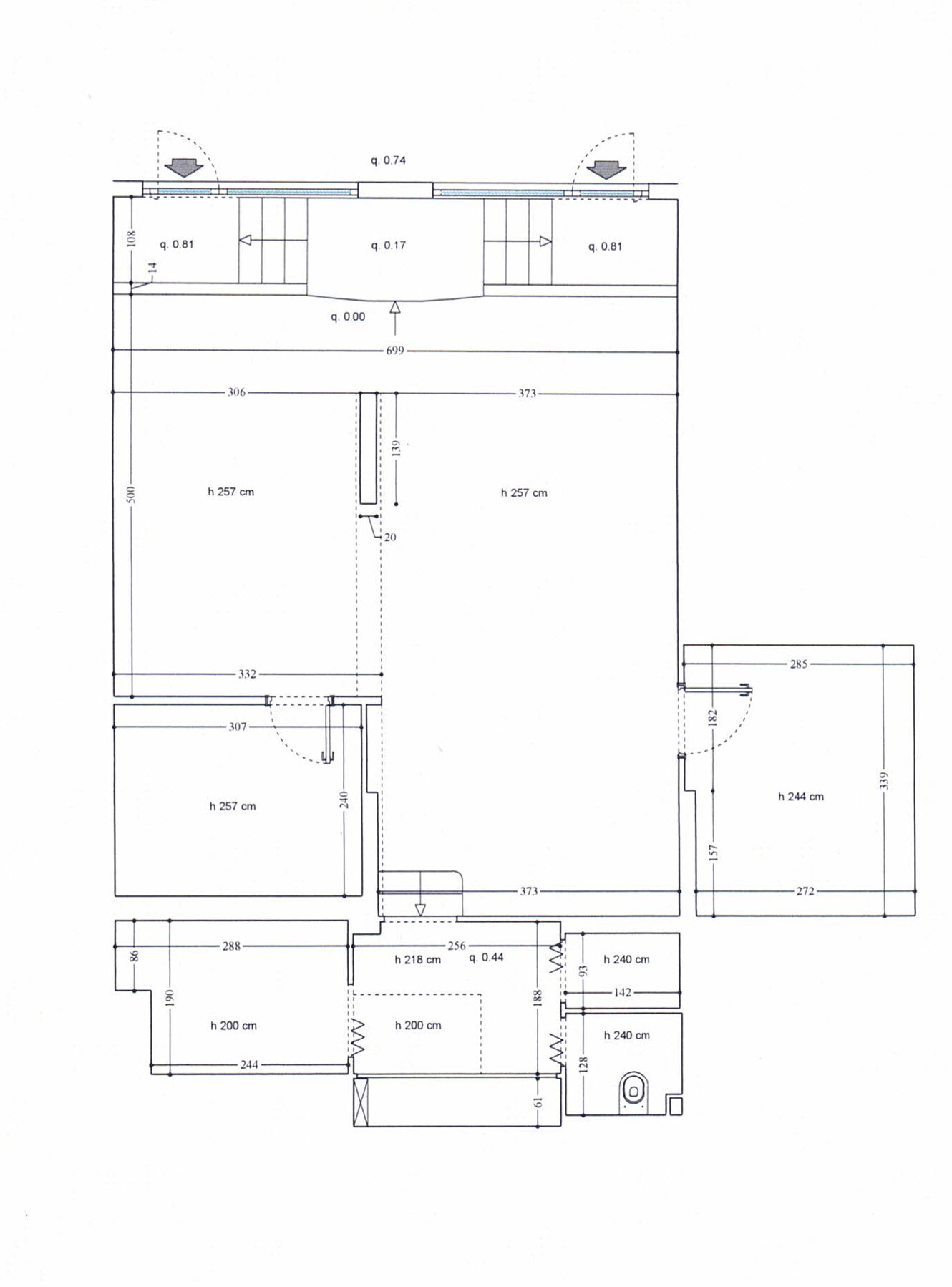
This bright commercial space or administrative office features a large display window and dual access.
Commercial Space / Administrative Office for Sale
This bright commercial space or administrative office features a large display window and dual access. It includes a spacious main room, two side rooms at the back, a laundry room, storage room, restroom, and a large built-in closet.
The monthly rent is €3,687 (excluding VAT) with an additional 20% VAT (€737). The lease term is 3 years (3-6-9 lease type), expiring on 30/09/2026. Currently leased as an administrative office, the space is presently used for a hair salon business.
Type(s) of property(ies)
Apartment Duplex Office space House Villa Box Right to lease Sale of business assetLocalisation
Price
Living area
Sales in Monaco - Office space - 2 rooms - Fontvieille